The Tiny Cavalli

3 bedroom transportable house by Modular Dwellings with covered deck and modern family layout

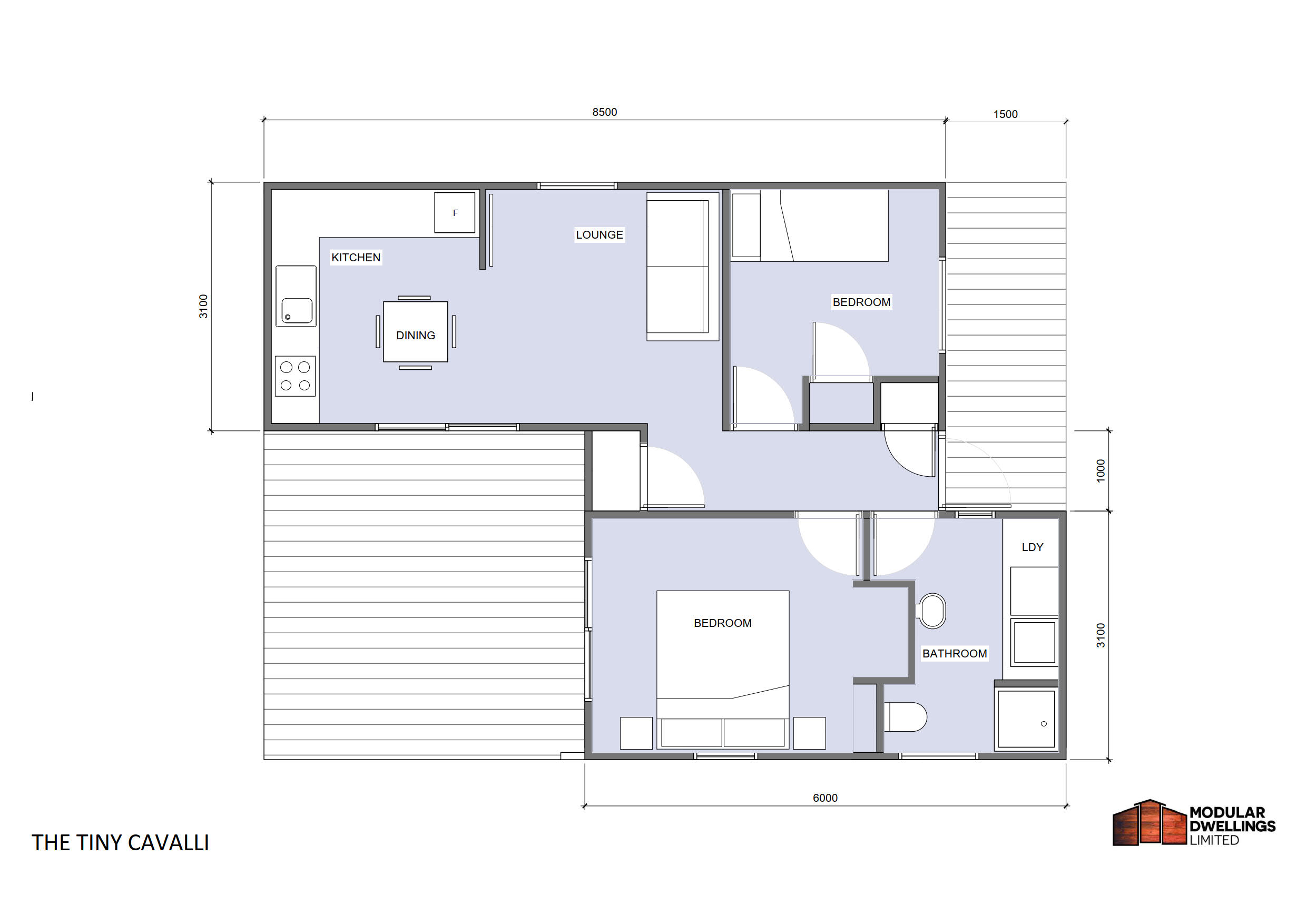
The Tiny Cavalli

49.2m2
2
1

Smaller than the Cavalli but still an easy-living two bedroom home or guest house.  Like The Cavalli extended, this plan can be adapted to make a one bedroom home with a larger living space.

Perfect for a granny flat or AirBnB.

Photo shows our Premium range.

Price from

$227,000

Ready to start your dream house/studio journey? Let's Chat.

Other Models

You might like